400 650 1979
安丘10万吨啤酒项目规划公布
2026-01-20 (来源: 糖酒网)
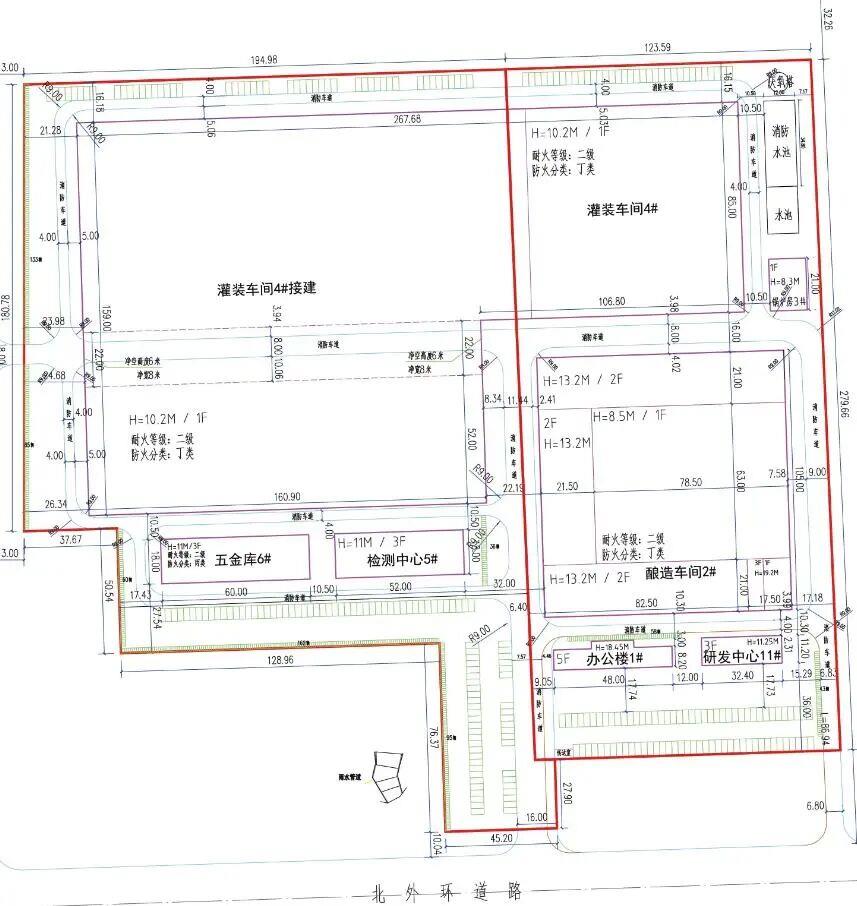
近日,安丘10万吨啤酒项目建设工程规划批前公布,项目由山东绿水啤酒有限公司建设,位于风筝大街北侧。

项目净规划用地面积81887㎡(合122.83亩),总建筑面积60191.3㎡,计容面积100502.5㎡,地上建筑包括办公楼1#、研发中心11#、酿造车间2#、锅炉房3#、灌装车间4#及接建、检测中心5#、五金库6#,容积率1.23,建筑系数58.98%,绿地率4.3%,停车位263个。

其中一期规划用地面积34562㎡(合51.84亩),总建筑面积26801.1㎡,建筑内容包括办公楼1#、研发中心11#、酿造车间2#、锅炉房3#、灌装车间4#。二期规划用地面积47325㎡(合70.99亩),总建筑面积33390.6㎡,建筑内容包括检测中心5#、五金库6#、灌装车间4#接建。
本次建设灌装车间4#接建27342.6㎡,建筑高度10.2米,检测中心5#2808㎡,建筑高度11米。(来源:乐易齐鲁)

相关文章
- 全国糖酒会http://www.tangjiu.cn/tjh.html
- 地方糖酒会http://www.tangjiu.cn/df.html
- 华润雪花520新品首发;燕京啤酒发布“十五五”战略
- 青岛啤酒博物馆x华清宫联名新品上市
- 数据 | 2026年1-4月中国进出口啤酒数据出炉
- 土耳其艾菲斯将在中国生产啤酒
- 帝亚吉欧24亿啤酒工厂投产
- 青岛饮料集团2025营收13.7亿元 保拉纳任命新的首席财务官
- 六月投产丨燕京啤酒山东邹城100万吨项目
- 百威亚太2026一季度重回增长
- “带劲”官宣!雪花正式成为CBA联赛官方合作伙伴
- 青岛啤酒2026年一季度销量220万千升,西藏发展2025年净利润1.44亿元





加专业顾问微信,帮您解决酒产品难题
